Appartamento a Ricadi

 



 

 

servizi

attività

vacanze

tradizioni

manifestazioni

itinerari

vetrina

 


Proposta "G"

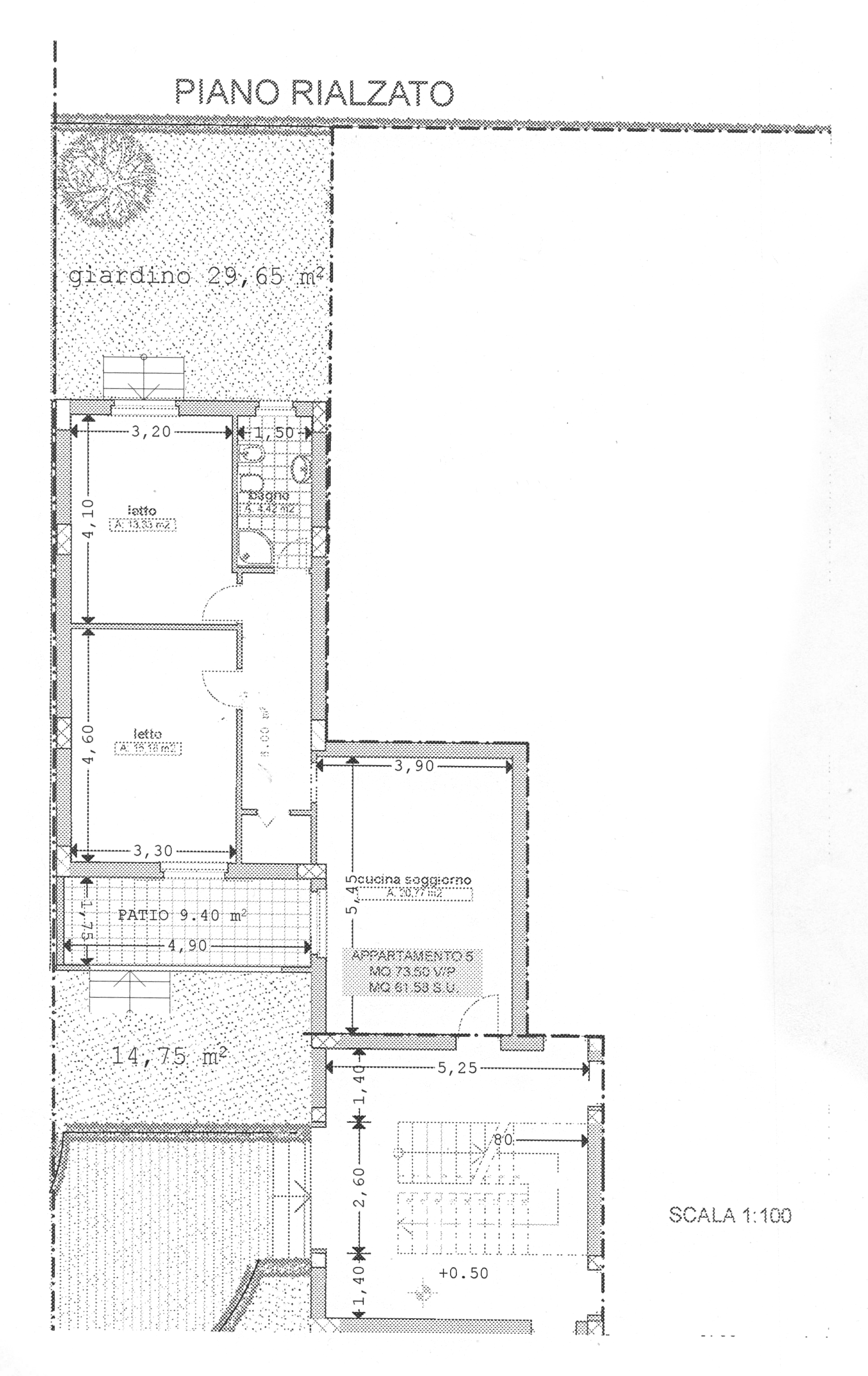
Appartamento di nuova costruzione situato in complesso residenziale "Il giardino degli ulivi". Località Ricadi, vicino Capo Vaticano e a 15 minuti da Tropea.

L'appartamento è di 73 mq. circa.

Composto da cucina con ripostiglio , veranda e giardino. due camere da letto, un bagno, più giardino sul retro e posto auto.

Il complesso Residenziale è dotato di giardini in comune con vegetazione mediterranea - grande piscina accessibile ai condomini – cancello di entrata – cancello grande automatico per uscita ed entrata macchine

Prezzo €.120.000,00 trattabili

Planimetria

          

          

     
     
 

Privacy e Cookie Policy  

 

Per informazioni scrivi all'indirizzo e-mail info@tropea-online.com

N.B.:Tropea-online.com declina ogni responsabilità, per gli annunci presenti sul sito, sia nel caso in cui non fossero in regola con le leggi vigenti in materia o non risultassero così come descritti, inoltre i dati sono direttamente trattati dai relativi proprietari, per come stabiliscono le leggi vigenti in materia. I proprietari di tali annunci sono direttamente responsabili per quanto riportato, perché lo scopo del portale è quello di far conoscere il territorio, e pertanto gli annunci sono a titolo gratuito senza scopo di lucro.

 

Home

© Copyright 2003-07 - Tutti i diritti sono riservati.

indietro